Neubau Kindertagesstätte - Kita Jakobus, Brunsbüttel

Projektbeschreibung

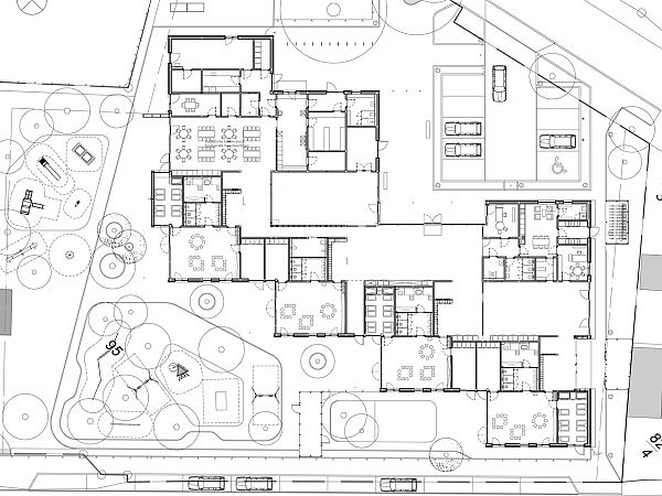
Mit dem Neubau eines viergruppigen Kindergartens in Brunsbüttel ist ein moderner, kindgerechter Bildungsort entstanden. Der eingeschossige Bau mit einer Bruttogrundfläche von 1.492 m² wurde in nachhaltiger Holz
rahmenbauweise errichtet und erhielt ein Verblendmauerwerk als langlebige und wertige Fassadenverkleidung. Jeder Gruppenraum verfügt über bodentiefe Fenster und eine vorgelagerte Terrasse, die für viel Tageslicht sorgen und den Innenraum mit dem Außenbereich verbinden. Eine besondere Qualität bietet die großzügige Lauffläche im Freien, die Raum für Bewegung und freies Spiel schafft. Ergänzt wird das Raumprogramm durch einen Bewegungsraum sowie eine großzügige Mensa als Ort derBegegnung. Der Neubau überzeugt durch eine klare, funktionale Struktur, hohe
Aufenthaltsqualität und eine natürliche Materialwahl, ein zeitgemäßer Lern- und Lebensraum für Kinder.

Fotos: Alexander Zachen

Visualisierungen: JEBENS SCHOOF ARCHITEKTEN BDA